Prodaja, Hiša, Trojček, Ljubljana mesto

595.000 €

Opis

NOVOGRADNJA verižna hiša na Brodu (H2)

Iščete sodoben dom na mirni, a povezani lokaciji?

Vam je pomembno udobje, zasebnost in prijeten zunanji prostor?

Potem je verižna hiša H2 v prestižnem naselju Brod prava izbira za vas!

Opis nepremičnine:
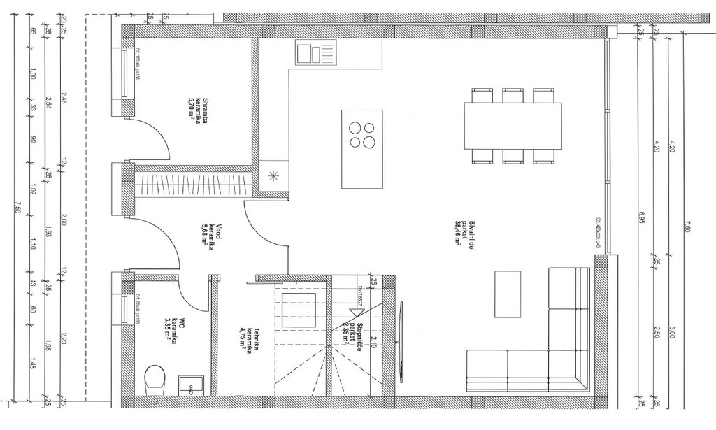
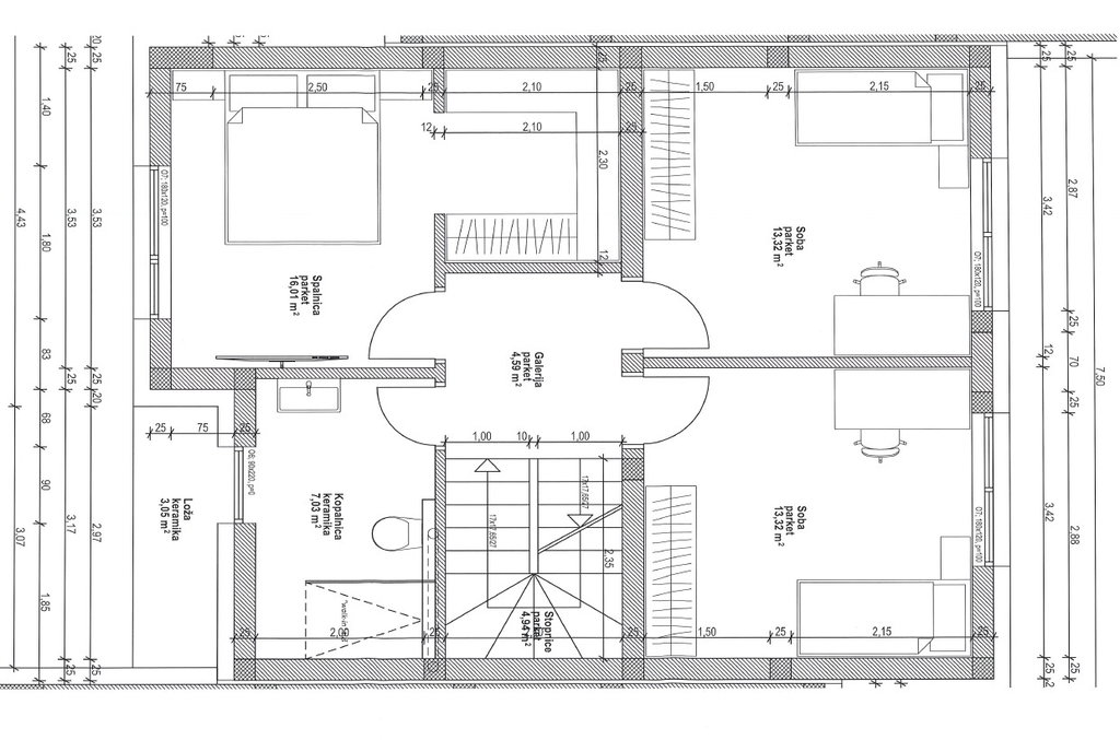
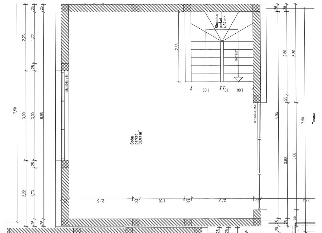
Gre za novogradnjo, zasnovano v treh etažah, s skupno bruto 172,75 m² stanovanjskih površin + prostorna terasa (26,25 m²) in zelenim vrtom cca 45 m² za hišo. Pred vhodom je dvorišče, ki omogoča dodatne zunanje ureditve po želji. Celotna parcela je v velikosti 156m2 .

Tlorisna zasnova:

  • Bruto dimenzije objekta: 7,50 m x 10,00 m

  • Etaža 3: stanovanjski del 6,50 m x 7,50 m in terasa 3,50 m x 7,50 m

Faza gradnje – skoraj dokončano!
Novogradnja se prodaja z že izvedenimi:

  • predelnimi stenami, elektro in stroj. inštalacijami

  • toplotno črpalko, klimatskimi napravami, talnim gretjem

  • strojnimi ometi in betonskimi tlaki

  • ograjo in urejenim zadnjim dvoriščem z vrtom (keramika + ozelenitev)

  • slikopleskarskimi deli (bela barva)

Za kupca ostane dokončanje po lastnem okusu :

  • keramika in parket po izboru

  • ureditev prednjega dvorišča

  • nadstrešek

Cena: 595.000 €

Ta novogradnja združuje moderno arhitekturo, energetsko učinkovitost in odlično lokacijo.

Lokacija – Brod
Mirno okolje v bližini narave, a hkrati odlična dostopnost do centra Ljubljane in vseh pomembnih povezav.


 

Koda: S222

Naročitelj kot pogoj za sklenitev prodajne pogodbe izpostavlja, da mora kupec poleg plačila dogovorjene kupnine, prodajalcu povrniti polovico stroškov, ki so nastali s prodajo nepremičnine, kar predstavlja 2%+DDV.

Dodatno

  • Priključki
    Elektrika Voda Kanalizacija

Primerljive nepremičine